Menu
Schließen
Primäre Navigation
home
Projekte
Kontakt
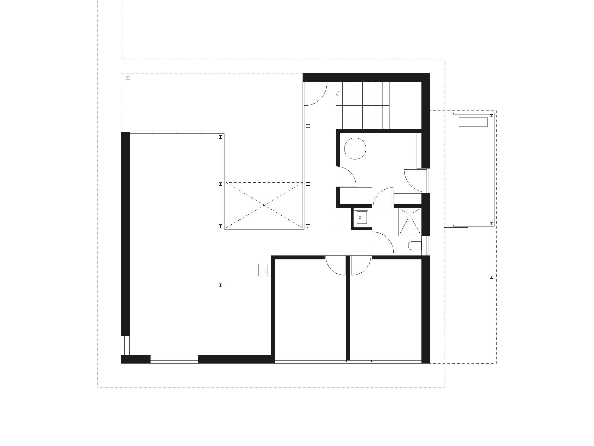
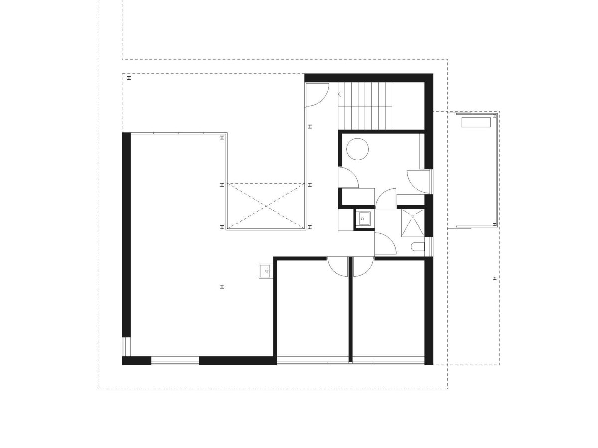
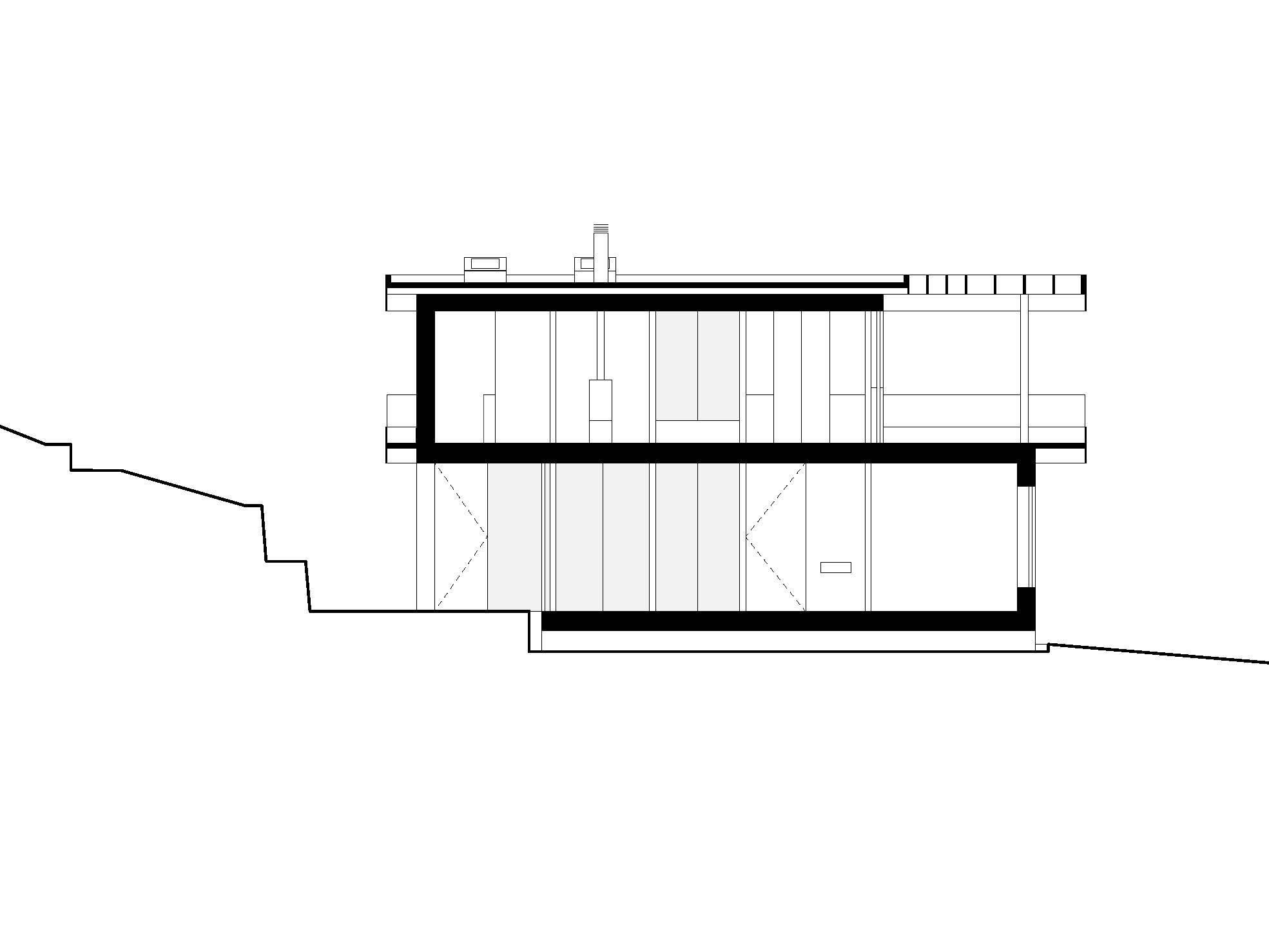
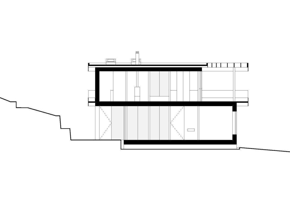
Projekt
Neubau EFH Hallau
Architektur
Föllmi + Sieber Architekten
Projektierung
2017 - 2018
Realisierung
2018 - 2019
Ort
Hallau SH
Auftraggeber
Privat